
RECHERCHE
Maison individuelle à vendre 4 chambres à Pétange
- Type : Maison individuelle
- Chambres : 4
- Salle de bain : 1
- Surface habitable : +/-139,6 m2
- Superficie terrain : +/- 4,58 ares
- Prix de vente : 980 947 €
- Disponibilité : à convenir
Classe énergétique
A
Classe d'isolation thermique
A
Description
Découvrez votre future maison basse consommation à Pétange, dans le canton d'Esch-sur-Alzette !À seulement 15 minutes d'Esch-sur-Alzette, 30 minutes de Luxembourg-ville et 40 minutes de Mersch, cette maison unifamiliale neuve de 157 m² (dont 133 m² habitables) sera bâtie sur un terrain de 4,58 ares. Un cadre de vie privilégié alliant confort moderne et performance énergétique vous attend !
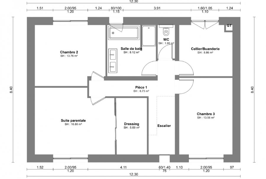
AGENCEMENT DE LA MAISON :
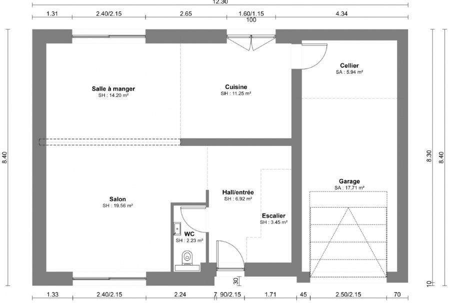
? Au rez-de-chaussée : hall d'entrée, espace living/cuisine traversant de 45 m², cellier, WC, accès au garage.
? À l'étage : une suite parentale, 3 chambres, une salle de bains et une buanderie.
Avec ses 4 côtés libres, cette maison vous permettra de profiter d'un beau jardin et d'une grande terrasse accessible depuis le living.
PRESTATIONS ET PRIX :
Ce projet en finition « prêt à finir » vous est proposé au prix de 980 947 € (hors frais de notaire, enregistrement et finitions intérieures). Profitez de prestations haut de gamme tout en adaptant les finitions à vos envies et votre budget.
Devenez propriétaire d'une maison qui combine qualité, durabilité et personnalisation ! Pour plus de détails et/ou recevoir les plans, contactez-nous dès maintenant.
Caractéristiques
Intérieur
CuisineOui
Cuisine ouverteOui
Sanitaires
Salle de bain1
Toilettes séparées2
Extérieur
Terrain4.58 ares
Terrasse24.24 m²
Autres
CaveOui
BuanderieOui
Chauffage / climatisation
Pompe à chaleurOui